Listing Tools

Listed by Jonathan Shockley of Switz Real Estate Associates ((860) 917-6016)
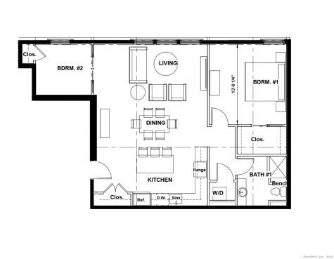
Discover modern living in the heart of Mystic with this stunning 2-bedroom, 1-bathroom condo. Recently constructed and meticulously designed, this residence offers a perfect blend of comfort and style. Bright and Airy: Enjoy an open-concept living space filled with natural light, perfect for entertaining or relaxing after a busy day. A gourmet Kitchen features sleek stainless steel appliances, ample cabinetry, and a breakfast bar. A Primary bedroom suite with ensuite bath and walk in closet and dressing room. A guest bedroom retreat with closet space to accommodate your needs. Modern bathrooms includes premium fixtures and finishes, ensuring a spa-like experience. Located steps away from downtown Mystic, you'll have access to vibrant shops, delightful dining, and picturesque waterfront views. Easy access to public transportation and close proximity to major highways for effortless commuting. Private parking garage and roof deck overlooking the Mystic River.

Map Location

Driving Directions

The data relating to real estate for sale on this website appears in part through the SmartMLS Internet Data Exchange program, a voluntary cooperative exchange of property listing data between licensed real estate brokerage firms, and is provided by SmartMLS through a licensing agreement. Listing information is from various brokers who participate in the SmartMLS IDX program and not all listings may be visible on the site. The property information being provided on or through the website is for the personal, non-commercial use of consumers and such information may not be used for any purpose other than to identify prospective properties consumers may be interested in purchasing. Some properties which appear for sale on the website may no longer be available because they are for instance, under contract, sold or are no longer being offered for sale. Property information displayed is deemed reliable but is not guaranteed. Copyright 2025 SmartMLS, Inc.

Hi there! How can we help you?

Contact us using the form below or give us a call.

Send Us A Message:

I agree to receive marketing and customer service calls and text messages from The Market Team at William Pitt Sotheby's International Realty. To opt out, you can reply 'stop' at any time or click the unsubscribe link in the emails. Consent is not a condition of purchase. Msg/data rates may apply. Msg frequency varies. Privacy Policy.

Do not fill in this field:

This site is protected by reCAPTCHA and the Google Privacy Policy and Terms of Service apply.

Hi there! How can we help you?

Contact us using the form below or give us a call.

Send Us A Message:

Do not fill in this field:

This site is protected by reCAPTCHA and the Google Privacy Policy and Terms of Service apply.

Hi there! How can we help you?

Contact us using the form below or give us a call.

Send Us A Message:

Do not fill in this field:

This site is protected by reCAPTCHA and the Google Privacy Policy and Terms of Service apply.

Do not fill in this field:

This site is protected by reCAPTCHA and the Google Privacy Policy and Terms of Service apply.

Do not fill in this field:

This site is protected by reCAPTCHA and the Google Privacy Policy and Terms of Service apply.

Do not fill in this field:

This site is protected by reCAPTCHA and the Google Privacy Policy and Terms of Service apply.

$

Do not fill in this field:

This site is protected by reCAPTCHA and the Google Privacy Policy and Terms of Service apply.