Listing Tools

Listed by Kristina Quinones of William Pitt Sotheby's Int'l ((860) 227-5542)
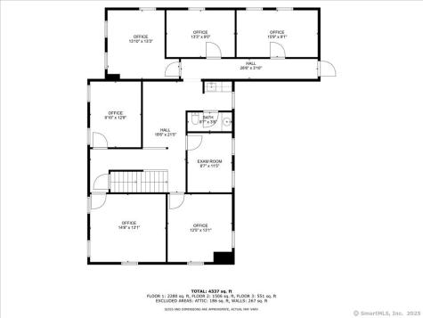
Prime Investment Opportunity in Thriving Norwich Corridor! Unlock the potential of this 4,280 SF, three-story commercial building located in the high-visibility Bean Hill neighborhood of Norwich, CT. Positioned just off Route 2 and I-395 with approximately 127 feet of frontage, this highly visible and well-maintained property offers excellent long-term value for investors and owner-users alike. Built in 1870 and thoughtfully updated for modern use, the building features 24 paved parking spaces, a spacious and professional interior layout, with 18 offices, a total of 3 bathrooms, an ADA-compliant bathroom on the first floor. The flexible NC zoning allows for a wide range of commercial uses including therapy, medical, legal, financial, or creative agency space. With clean curb appeal, accessible design, and proximity to major transit routes, medical centers, and downtown Norwich, this property is a strong contender in an appreciating commercial corridor.

Map Location

Driving Directions

The data relating to real estate for sale on this website appears in part through the SmartMLS Internet Data Exchange program, a voluntary cooperative exchange of property listing data between licensed real estate brokerage firms, and is provided by SmartMLS through a licensing agreement. Listing information is from various brokers who participate in the SmartMLS IDX program and not all listings may be visible on the site. The property information being provided on or through the website is for the personal, non-commercial use of consumers and such information may not be used for any purpose other than to identify prospective properties consumers may be interested in purchasing. Some properties which appear for sale on the website may no longer be available because they are for instance, under contract, sold or are no longer being offered for sale. Property information displayed is deemed reliable but is not guaranteed. Copyright 2025 SmartMLS, Inc.

Hi there! How can we help you?

Contact us using the form below or give us a call.

Send Us A Message:

I agree to receive marketing and customer service calls and text messages from The Market Team at William Pitt Sotheby's International Realty. To opt out, you can reply 'stop' at any time or click the unsubscribe link in the emails. Consent is not a condition of purchase. Msg/data rates may apply. Msg frequency varies. Privacy Policy.

Do not fill in this field:

This site is protected by reCAPTCHA and the Google Privacy Policy and Terms of Service apply.

Hi there! How can we help you?

Contact us using the form below or give us a call.

Send Us A Message:

Do not fill in this field:

This site is protected by reCAPTCHA and the Google Privacy Policy and Terms of Service apply.

Hi there! How can we help you?

Contact us using the form below or give us a call.

Send Us A Message:

Do not fill in this field:

This site is protected by reCAPTCHA and the Google Privacy Policy and Terms of Service apply.

Do not fill in this field:

This site is protected by reCAPTCHA and the Google Privacy Policy and Terms of Service apply.

Do not fill in this field:

This site is protected by reCAPTCHA and the Google Privacy Policy and Terms of Service apply.

Do not fill in this field:

This site is protected by reCAPTCHA and the Google Privacy Policy and Terms of Service apply.

$

Do not fill in this field:

This site is protected by reCAPTCHA and the Google Privacy Policy and Terms of Service apply.